Attico
vendita
Attico di pregio zona Ronco
Attico in vendita a Cortina d’Ampezzo – ultimo piano, esposto a sud-est con vista sulle Dolomiti, cantina, e doppio garage
3
Camere
3
Bagni
125
m²
2
Posti auto
3
Piano
sud-est
Esposizione
1970
Anno
In fase di definizione
Classe en.
1.880.000 €
Prezzo
- Angolo cottura
- Vista sulle Dolomiti
- Garage
- Caminetto
- Cantina
- Ripostiglio
- Zona semicentrale
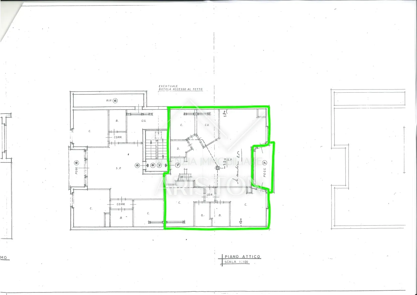
All’ultimo piano di un elegante condominio di Cortina d’Ampezzo, proponiamo attico luminoso ed esclusivo, caratterizzato da un’ottima esposizione a sud-est che garantisce sole fin dalle prime ore del mattino e una piacevole luminosità per tutta la giornata.
Zona giorno
L’ingresso si apre su un accogliente disimpegno che porta al soggiorno con camino, perfetto per creare un’atmosfera calda e raccolta durante le serate in montagna. Gli spazi sono ben organizzati per ospitare sia la zona conversazione che l’angolo pranzo. Dal soggiorno si accede direttamente al poggiolo abitabile, ideale per pranzare all’aperto, leggere o semplicemente godersi la vista sulle montagne circostanti.
Adiacente al soggiorno trova posto la cucina, funzionale e separata, pensata per essere pratica nell’uso quotidiano senza rinunciare alla convivialità della zona giorno.
Zona notte
La zona notte è ben distinta e garantisce comfort e privacy a tutti gli ospiti:
Due camere matrimoniali, entrambe dotate di bagno privato interno. Soluzione perfetta per nuclei familiari o coppie di amici, in quanto ogni stanza gode di i propri spazi e servizi esclusivi.
Una camera doppia (con due letti), anch’essa servita dal proprio bagno, ideale per bambini, ospiti o personale di servizio. La stanza è impreziosita da un soppalco, che può essere sfruttato come ulteriore zona letto, area giochi, angolo studio o spazio guardaroba.
Spazi esterni
Il poggiolo abitabile, accessibile dalla zona giorno, rappresenta un vero valore aggiunto: uno spazio esterno vivibile dove collocare un tavolino, delle sedie o una chaise longue e godersi l’aria fresca di montagna e la vista aperta.
Accessori e pertinenze
Completano la proprietà:
Cantina, ideale per riporre attrezzatura da sci, oggetti stagionali e provviste.
Due posti auto in garage, fondamentali a Cortina d’Ampezzo, dove il parcheggio rappresenta un plus imprescindibile soprattutto nei periodi di maggior affluenza.
Contatti
Per maggiori informazioni
Per richiedere maggiori informazioni compilare il modulo.
Immobili simili
Potrebbero interessarti

























